乐鱼体育
南方铝业,家装铝材,广东铝材,广东建筑型材,广东工业型材,乐鱼体育-leyu乐鱼online(中国)
EN
站点地图
加入收藏
全国服务热线:
400-930-8033
首 页
南方铝业
企业简介
发展历程
乐鱼体育
企业荣誉
新闻动态
企业动态
行业动态
企业视频
乐鱼体育-leyu乐鱼online(中国)
平开窗(门)系列
推拉窗(门)系列
地弹门系列
阳光房系列
家装节能隔热系列
幕墙系列
工业材系列
其他系列
南方品质
企业设备
工艺流程
技术资质
营销服务
国内营销
国际营销
售后服务
工程实例
合作伙伴
实力工程
人力资源
在线招聘
乐鱼体育-leyu乐鱼online(中国)
联系方式
在线留言
乐鱼体育-leyu乐鱼online(中国)
Products
平开窗(门)系列
推拉窗(门)系列
地弹门系列
阳光房系列
家装节能隔热系列
幕墙系列
工业材系列
其他系列
您现在的位置:
乐鱼体育
-
乐鱼体育-leyu乐鱼online(中国)
-
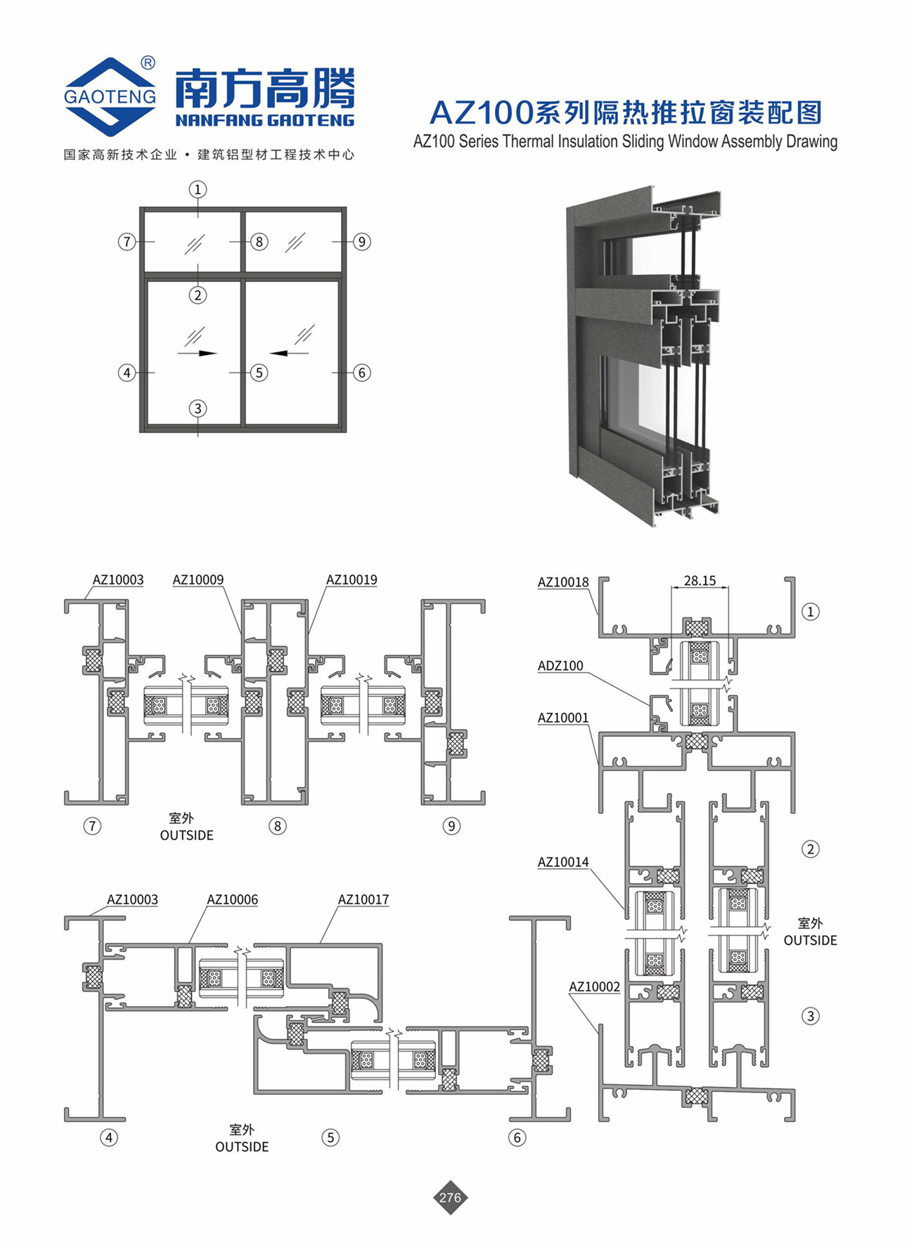
AZ100系列隔热推拉窗
家装节能隔热系列
温馨提示:左右滑动浏览其它图片,点击右上角“+”、“-”可以放大缩小图片。
AZ100系列隔热推拉窗
AZ100系列隔热推拉窗
AZ100系列隔热推拉窗